
11/24/2025 – As part of the Moores Creek Engineering and Administration Building Addition and Renovation Project, Rivanna Authorities is proud to announce plans for a transformative new resource for our community: a dedicated Education Center designed to bring water, wastewater, solid waste, and environmental sustainability to life for K–12 students and lifelong learners.
Opening in 2028, this immersive, hands-on learning environment supports our Strategic Framework priority of Communication and Collaboration by emphasizing awareness of our impact through proactive outreach, effective partnerships, and meaningful community engagement.
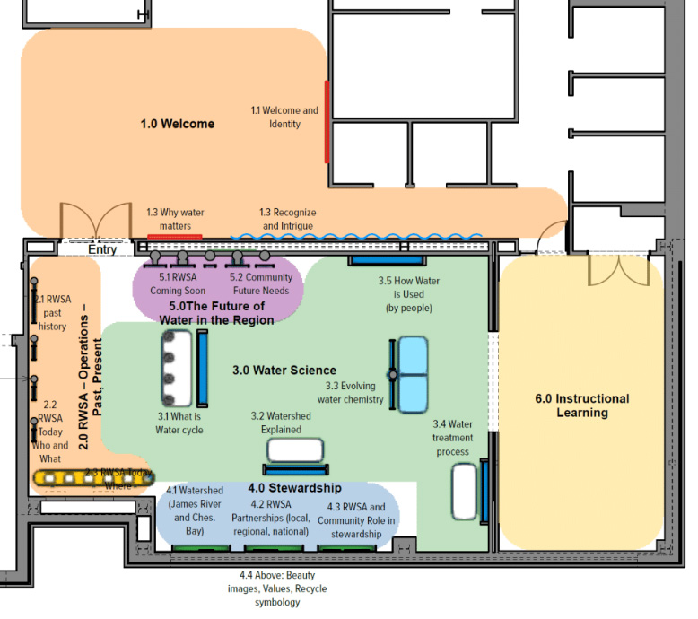
A New Space for Curiosity and Discovery

Visitors will step into a bright learning space filled with infographics, narratives, and interactive exhibits designed to spark curiosity and deepen understanding. An adjacent room will provide space for classroom instruction, where live demonstrations and lab exercises can be conducted.
This dynamic exhibit hall will highlight the essential work of both the Rivanna Water & Sewer Authority and the Rivanna Solid Waste Authority, offering a behind-the-scenes look at systems that sustain everyday life in the City of Charlottesville and Albemarle County.
What Students and Visitors Will Explore
Visitors will have the opportunity to engage with topics that connect real-world infrastructure to core environmental concepts:
- How drinking water is treated and transported to the tap
- How wastewater is cleaned and released back into local rivers
- How we manage closed landfill cells, and why proper landfill care matters
- How trash, recyclables, and compost from our community are handled
- The function and importance of watersheds and reservoirs
- Laboratory testing procedures and the science behind water quality
- Why conservation, recycling, and resource stewardship matter to our environment
- The journey of water and wastewater through full treatment cycles
Through interactive exhibits and hands-on demonstrations, students will see how biology, chemistry, engineering, and environmental sciences intersect to solve complex challenges. These experiences help learners understand the human impact on natural resources and the importance of sustainable practices—key components of environmental literacy.
Supporting K–12 Learning and Virginia’s SOL Standards
The Education Center is intentionally designed to support Virginia Standards of Learning (SOLs) across grade levels. Exhibit content emphasizes essential topics, including:

- Natural resources, watersheds, and ecosystems
- The water cycle, water properties, and matter
- Microorganisms, bacteria, and viruses
- Human impacts on the environment
- Energy pyramids, nutrient cycles, and habitats
- Recycling, reducing, reusing, and waste management
Future content aligns with key SOLs such as K.11, 1.8, 3.7, 3.8, 4.8, 6.6, 6.8, 6.9, LS.3, LS.5, LS.8, LS.9, PS.9, BIO.4, BIO.8, CH.5, ES.6, ES.8, PH.8, as well as relevant Health standards K.1.r, 1.1.q, 3.1.r, 6.1.y, 10.1.t to reinforce cross-disciplinary learning.
Together, these connections support educators in delivering meaningful instruction while offering students an unforgettable real-world experience.
Building on a Legacy of Public Education
Our team has long welcomed students and tour groups to explore:
- Water Treatment Plants
- Advanced Water Resource Recovery Facilities (Wastewater Treatment Plants)
- Recycling and Trash Refuse Centers
The new Education Center expands this commitment, providing a year-round, weather-proof, interactive space that allows students to engage deeply with the science and engineering that sustain our community.
Opening in 2028
The Education Center will be open to the public and available for school groups, community organizations, and tours with advance notice. As construction progresses, we look forward to sharing updates and inviting our community into this exciting new chapter of environmental education.
